• Architecture
  • Landscape Architecture
  • Housing

DCC Modular Housing,
Dublin

Info

 

Project Details:

Delivery of 261 social homes across four schemes, as part of the Irish Government's ambitious Modular Housing Programme.

Client: Dublin City Council

Construction Value: TBC

Completion: 2023

Location: Dublin

Images: Fionn McCann, Niall O'Connell

International collaboration
Brownfield site
Child friendly design
100% Affordable Housing
Community engagement
Dual aspect homes
Enhanced biodiversity
Enhanced public realm
New homes
Offsite construction
Social value
Low energy use

Where we started

As part of the Irish government’s plans to improve the country’s housing and to deliver more homes, in 2017 Dublin City Council committed to delivering new social homes through a Modular Housing Programme.

Levitt Bernstein, in partnership with local practice ABK Architects, have delivered 261 homes as part of this programme across four sites, all of which have now been handed over to Dublin City Council. The four sites are in diverse city contexts, from dense inner-city blocks near the River Liffey to lower-rise buildings overlooking the historic Phoenix Park on the city's outskirts.

Bunratty Road concept sketch.

We are proud to support Dublin City Council with the provision of high quality and sustainable social housing, making the most of redundant or brownfield sites while suppling new homes that are desperately needed in the city.

Barry McCullough, Director at Levitt Bernstein

Design

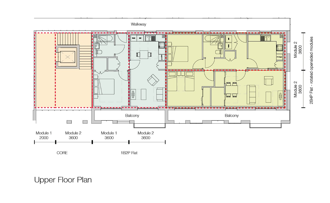
To maximise efficiency and improve viability, we developed six apartment typologies that fitted within the constraints of a variety of offsite construction systems yet were adaptable to respond to the context of each site, prioritising views and orientation, and utilising external materials that respond to context.

The projects vary in terms of massing and elevational appearance. This limited series of house and flat typologies all meet the Council’s stringent space standards and were rigorously tested for site access, structural assumptions, transportation costs, and vehicle tracking from nearby ports and highways to ensure compatibility with as wide a range of offsite suppliers as possible.

External brickwork cladding and balconies were designed to be added on-site allowing these elements to be tailored to the surrounding context, especially at key corners and entrances. For example, at Bunratty Road, our analysis of the site identified several important corners and views of the scheme and as a result the cladding and balcony arrangement was varied to add emphasis to each of these important corners.

The new buildings are designed to meet Nearly Zero Energy Building (nZEB) standards with heating supplied by low-carbon, individual exhaust air heat pumps, maximising the use of renewable energy sources.

At key corners, external brickwork is tailored to the surrounding context.

Bunratty Road modularisation diagram

Bunratty Road

This pilot project delivers 78 homes in semi-detached houses and four 4 storey apartment blocks on Bunratty Road in northern Dublin. This project successfully delivers high quality suburban housing adjacent to a main vehicular artery.

Weaver Place

This project delivers two new apartment buildings on a site in central Dublin, located adjacent to Weaver Park, also developed by DCC. The development responds to a very varied context in terms of scale, ranging from three to seven storeys in height, providing 55 apartments and 60sqm of commercial space for a café facing the park.

Bonham Court

This scheme delivers three new apartment buildings on a site opposite an urban park which had recently been developed by Dublin City Council, in the Liberties area, south of the River Liffey. The new buildings were designed to reflect the former distillery warehouses characteristic of the area. The development provides 57 apartments along with 320sqm of non-residential space for live/work and office start-ups.

Springvale

Located on the edge of Phoenix Park, Dublin’s largest public greenspace, this scheme takes inspiration from the surrounding village of Chapelizod. It comprises 71 affordable apartments in buildings ranging from three to five storeys. Amenities include green spaces, parking, a community scout hall, and a new neighbourhood play area.

Springvale takes inspiration from the surrounding village.

Bunratty Road.

Springvale context.

Weaver Place is adjacent to an urban park.

Weaver Place courtyard.

Typical floor plan.

Bonham Court staircase detail.

Core team

Barry McCullough

Consultant

Simon Lea

Director

Kate Digney

Studio Director, Place

Marc Escobar

Senior Architect

Manpreet Kandola

Project Architect