• Architecture
  • Housing

Buccleuch House,
Hackney

Info

 

Project Details:

Unifying three different communities into one truly intergenerational housing project in north London.

Client: Hill, Hanover and Agudas Israel Housing Association

Construction Value: £15m

Completion: 2015

Location: Hackney

Awards:

  • EAC National Housing for Older People Awards 2019, Best UK Retirement Housing: Gold Award
  • Building Awards 2016, Housing Project of the Year: Finalist
  • British Homes Awards 2016, Affordable Housing Development of the Year: Winner
  • What House? Awards 2016, Best Exterior Design: Silver
  • What House? Awards 2016, Best Partnership Scheme: Silver
  • Hackney Design Awards 2016: Shortlisted
  • Housing Design Awards 2016, Completed: Shortlisted
  • London Planning Awards 2016, Best New Place to Live: Shortlisted
  • New London Awards 2015, Health & Care: Shortlisted
  • WAN Awards 2015, Residential: Longlisted
  • Housing Design Awards 2013, Project: Winner
  • Housing Design Awards 2013, HAPPI Award: Winner

Images: Tim Crocker

Intergenerational living
Housing for older people
Post-occupancy evaluation
Renewables on site
Ultra low carbon
Low energy use
New homes
Dual aspect homes
Community engagement
Retained mature trees
Social value

Where we started

This unusual project involved working with three separate clients, each with a distinct brief, to provide new homes for three different communities: first time buyers, Orthodox Jewish families and older people who need extra care. Our challenge was provide of each group of residents with homes meeting their needs within a single, elegant building.

The site has a prominent frontage onto Clapton Common

The integration of the three types of housing creates a truly intergenerational scheme – one which could act as a blueprint for future developments.

Irene Craik, Director

Buccleuch House replaced this derelict 1950s block of studio flats

The site was previously home to run-down bedsit accommodation, providing poor quality dwellings for very few people. We sought to change this by designing homes that are attractive, appropriate and appealing within a building that could comfortably accommodate more people. There was an opportunity to make more of the location too, with Clapton Pond facing the site and the Lea Valley to the rear, we wanted residents to feel connected to the environment and enjoy views out onto these spaces.

Three tenures are combined within one elegant building

Courtyards provide external space for older residents...

...whilst winter gardens offer secure internal amenity

Some homes are designed specifically for the local Orthodox Jewish community

Design

Our design focused on creating a new community within one new unified building. Our aim was to create a diverse scheme where residents enjoy interacting and sharing space and time together.

Key to this is the way the building shows very little difference externally across the three tenures – creating a sense of equality across each of the groups.

The only exception is the use of subtly different balcony types, which were designed with the practical and cultural requirements of the residents in mind. The private apartments have simple stacking balconies to provide additional outdoor space; those for the Orthodox Jewish families are staggered to provide a clear view of the sky for the Sukkot festival; and those for the older residents are glazed to provide more shelter and an extra ‘living space’ for those who spend more time inside.

Section illustrating the internal layout of independent living homes

This bespoke approach continues inside the building. The private apartments are open plan with one or two bedrooms to suit first time buyers. Homes for Orthodox Jewish families have at least three bedrooms and include extra sinks and external space needed for religious festivals. Many of the homes for older people follow HAPPI design recommendations, with flexible layouts to help residents move around more easily.

All residents share a large green square to the front of the building, which also has a small play area for children. The older residents also have two enclosed gardens to the rear of the building – one is landscaped and has seating areas for quiet respite, whilst the other has raised beds to encourage people to grow their own fruit and vegetables.

The scheme fronts onto a protected London square

The key to the success of obtaining planning, which was unanimous, was the close working relationship we enjoyed with the local community, the support and guidance from the planning and housing departments as well as the tripartite partnership between Hill, Hanover and AIHA.

Jamie Hunter, Development Director at Hill

Buccleuch House has won several design awards since completion in 2015, but a better marker of its success is in the way the community has integrated there. All 107 homes are sold and occupied, bringing activity and diversity where previously there was very little.

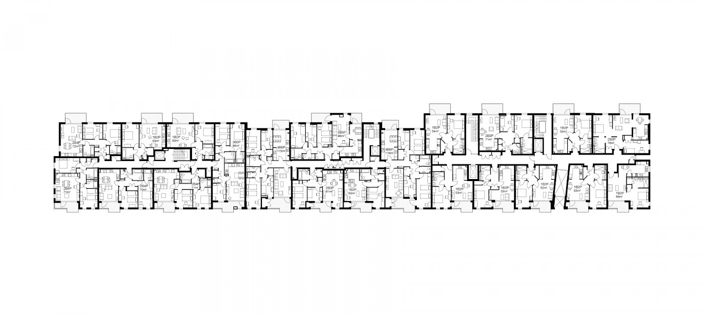
Ground floor plan

First floor plan

Core team

Irene Craik

Director

Lotta Nyman

Associate Director

Tom Randle

Associate Director

Robert Gilbert

Project Leader